Project
Interior Architecture and Design
Undergraduate
Project
Benedict Aditya Trianda
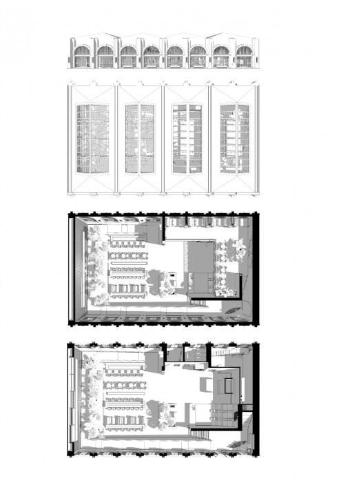
OASIS
Interior Architecture and Design
Undergraduate

Project: OASIS is a conceptual restaurant design that is based on Indonesian culture and dishes. The goal is to create new experiences that capture the essence of authentic Indonesian-style seafood, never before seen in the West. A restaurant that takes users on a journey through the interior & architecture inspired by the beautiful sandy beaches and tropical rain forests of North Sulawesi.

Indonesian iconographies are implanted throughout the design of the restaurant which hold sentimental value, or are symbolic of themes of nostalgia on genuine island-living. Mimicking Indonesia’s natural sea beauty, the main dining space for OASIS is located below ground level as if the users are taking a dive to obtain the sea’s natural resources.

For the sake of genuine authenticity, users can pick their own fish similar to traditional Asian fish markets where they can witness how fish get prepared, cooked, and served, making it an overall involved process.

Project
Lydia Harrison
18/8: Affordable Luxury Apartments
Interior Architecture and Design
Rendered visual of the courtyard
Project
Susannah Taylor
Ground Works
Interior Architecture and Design
Rooftop Garden, Visualisation
Project
William Sun
Mahjong Game Culture
Interior Architecture and Design
Project
Amelia Reid
Tangent
Interior Architecture and Design
Tangent Building
Project
Lucy Jenkins
Restore
Interior Architecture and Design
Exterior Visual
Project
Jim Shern
The Urban Garden
Interior Architecture and Design
The Urban Garden
Project
Dan Blackford
CARE
Interior Architecture and Design
CARE
Project
Muziff Hussin
THE OBITUARY
Interior Architecture and Design
THE OBITUARY
Text
Malaysia Summer Exchange 2023
Fashion Management and Communication, Graphic Design, Interior Architecture and Design, Photography
Image by Hollie Belsham
Project
Lois Long
The Next Chapter
Interior Architecture and Design
Atrium render
Project
Olivia Whiteley
A Psychedelic Retreat
Interior Architecture and Design
Psychedelic experience
Project
Gintare Rapoport
Amber the North Home
Interior Architecture and Design
Amber the North Home
Project
Jana Saveljeva
Tamper Sellers Wheel – High End Residency
Interior Architecture and Design
Tamper Sellers Wheel – High End Residency
Project
Jess Towers Mode
The Mush Room
Interior Architecture and Design
The Mush Room
Project
Ella Cosgrove
Closed Loop
Interior Architecture and Design
Closed Loop
Project
Ellie Simpson-McCaffery
Social Interchange – Future of Flooding
Interior Architecture and Design
Social Interchange – Future of Flooding
Project
Keshini Mistry
Culture Curtain
Interior Architecture and Design
Culture Curtain
Project
Lija Radziunaite
Bespoke Living
Interior Architecture and Design
Bespoke Living
Project
Wilgrace Gerona
Culture Exchange
Interior Architecture and Design
Culture Exchange
Project
Edith Pangani
Social Interchange
Interior Architecture and Design
Social Interchange
Project
Rehema Machuka
Green Haven Hotel, Sellers Wheel in Sheffield
Interior Architecture and Design
Courtyard
Project
Ryan Wegg
Cultural Exchange
Interior Architecture and Design
Bar at night close up with people
Project
Junjian Wang
‘Less is more’ style coffee and bar
Interior Architecture and Design
Axonometric drawing