Project
Interior Architecture and Design
Undergraduate
Project
Lija Radziunaite
Bespoke Living
Interior Architecture and Design
Undergraduate
Lija Radziunaite
Bespoke Living

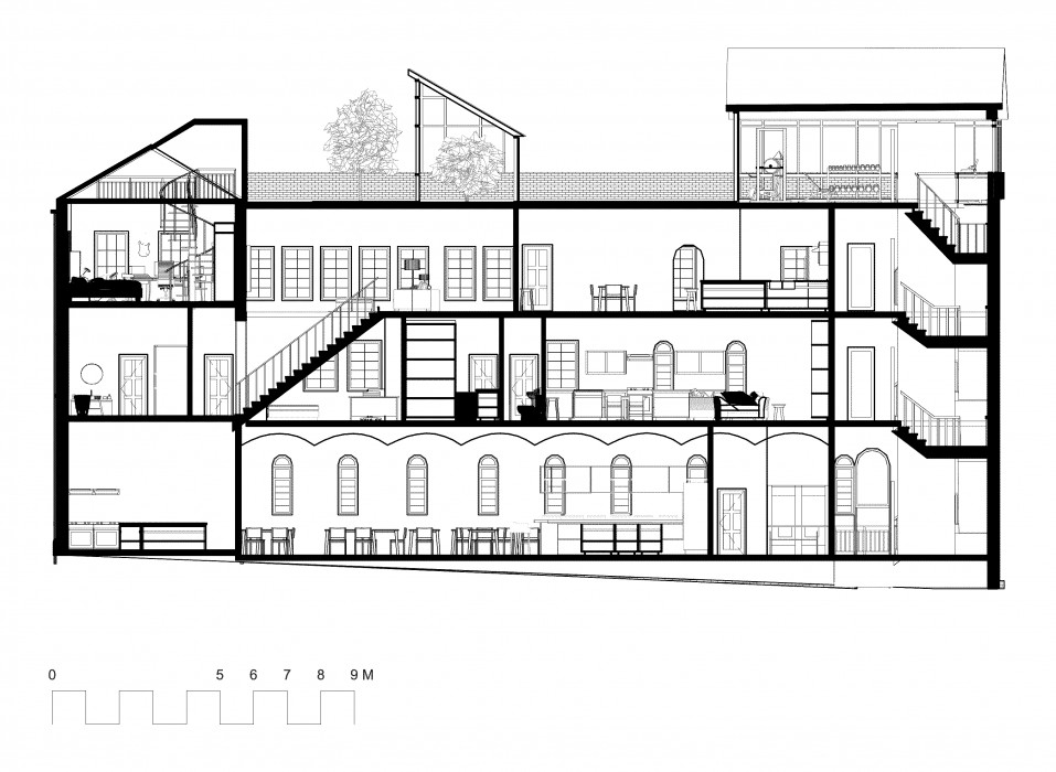
Lija Radziunaite’s project, ‘Bespoke Living’, is a collection of private custom-built apartments and a public bar occupying Sellers Wheel. The building located in the heart of Sheffield city centre currently homes Tamper Coffee, co-working spaces, and student accommodation.

‘Develop a spatial design proposal for an existing building based around your career aspirations’ was the starting point for Radziunaite’s project. This began the concept of designing bespoke living spaces by finding inspiration from luxury homes and personal design.

Radziunaite’s concept consists of maintaining the existing purpose of the ground floor, which is currently a hospitality space open to the public, however, reinterpreted as a high-end bar to compliment the exclusive apartments above. In the remaining space are three apartments accommodating a variety of clients with their own preferences and lifestyles, these include a sporty family of four, a cat-loving couple, and a music producer. From these clients, she created three different briefs, with client profiles, which specified their own personal needs and desires for their apartments to accommodate. To create a community within the living space, Lija also designed a communal garden including a greenhouse, and an indoor gym on the rooftop which enriches what the building offers and supports the client briefs.

Project
Lydia Harrison
18/8: Affordable Luxury Apartments
Interior Architecture and Design
Rendered visual of the courtyard
Project
Susannah Taylor
Ground Works
Interior Architecture and Design
Rooftop Garden, Visualisation
Project
William Sun
Mahjong Game Culture
Interior Architecture and Design
Project
Amelia Reid
Tangent
Interior Architecture and Design
Tangent Building
Project
Lucy Jenkins
Restore
Interior Architecture and Design
Exterior Visual
Project
Jim Shern
The Urban Garden
Interior Architecture and Design
The Urban Garden
Project
Dan Blackford
CARE
Interior Architecture and Design
CARE
Project
Muziff Hussin
THE OBITUARY
Interior Architecture and Design
THE OBITUARY
Text
Malaysia Summer Exchange 2023
Fashion Management and Communication, Graphic Design, Interior Architecture and Design, Photography
Image by Hollie Belsham
Project
Lois Long
The Next Chapter
Interior Architecture and Design
Atrium render
Project
Olivia Whiteley
A Psychedelic Retreat
Interior Architecture and Design
Psychedelic experience
Project
Gintare Rapoport
Amber the North Home
Interior Architecture and Design
Amber the North Home
Project
Jana Saveljeva
Tamper Sellers Wheel – High End Residency
Interior Architecture and Design
Tamper Sellers Wheel – High End Residency
Project
Jess Towers Mode
The Mush Room
Interior Architecture and Design
The Mush Room
Project
Ella Cosgrove
Closed Loop
Interior Architecture and Design
Closed Loop
Project
Ellie Simpson-McCaffery
Social Interchange – Future of Flooding
Interior Architecture and Design
Social Interchange – Future of Flooding
Project
Keshini Mistry
Culture Curtain
Interior Architecture and Design
Culture Curtain
Project
Lija Radziunaite
Bespoke Living
Interior Architecture and Design
Bespoke Living
Project
Wilgrace Gerona
Culture Exchange
Interior Architecture and Design
Culture Exchange
Project
Edith Pangani
Social Interchange
Interior Architecture and Design
Social Interchange
Project
Rehema Machuka
Green Haven Hotel, Sellers Wheel in Sheffield
Interior Architecture and Design
Courtyard
Project
Ryan Wegg
Cultural Exchange
Interior Architecture and Design
Bar at night close up with people
Project
Junjian Wang
‘Less is more’ style coffee and bar
Interior Architecture and Design
Axonometric drawing